FH0141

Boarea: 113.5

Antal plan: 1.5

Antal sovrum: 3

Antal badrum: 2

Interiör och planritning

Anpassa hus
FH0141

Undre plan

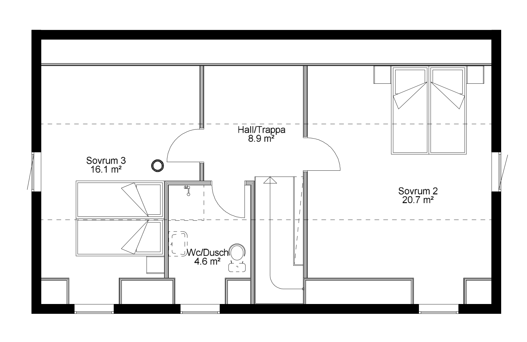
FH0141

Övre plan

Ett hus på många sätt

Inspireras av våra smarta planlösningar eller anpassa huset utifrån dina önskemål och behov. Har du en egen planritning? Skicka in den så får du en offert på husbygget.

Alla våra planritningar

Beställ våra huskataloger

Hus, fjällstuga eller fritidshus – hitta ditt nya hem i lugn och ro. Läs eller beställ hem våra kataloger.
Beställ här

De byggde drömhuset i skärgården

Inte långt från världsarvet Höga Kusten, längst ute på en liten udde, smälter Karin och Jan Näslunds nybyggda villa in fint i skärgårdsmiljön strax utanför Domsjö i Örnsköldsvik.
Läs mer om husprojektet