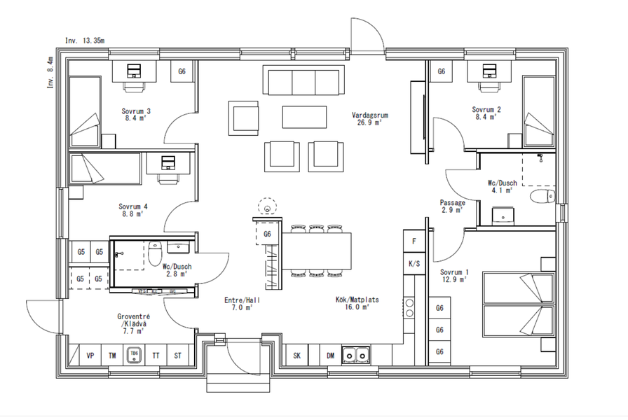
1,5-planshus

Många kvadratmeter boarea på en liten byggyta kännetecknar det smarta 1,5-planshuset. Husmodellen passar utmärkt för den växande familjen eller för en tomt där detaljplanen begränsar husgrundens storlek.

Antal sovrum

Antal badrum

Antal plan

Husmodell

Filtrera

Visa filtrering

Tyvärr hittade vi inga matchande resultat. Gör en ny sökning, eller kontakta oss!