Villa Svanö Enplan

Ett tidlöst enplanshus med klassisk landskapskaraktär och genomtänkta ytor för hela familjen. Här ryms tre sovrum, hemmakontor/gästrum och en social del där kök, matplats och vardagsrum möts. Med generös boarea på 153 m² och praktiska lösningar som groventré, dubbla badrum och gott om förvaring, förenas tradition med en modern livsstil. Ett hem att trivas i – länge.

Boarea: 153.1

Antal plan: 1

Antal sovrum: 3

Antal badrum: 2

Svanö – en hyllning till det tidlösa landskapshuset

Tre hus. Tre livsstilar. Samma klassiska känsla.


Med sin röda panel, senapsgula dörrar och vita fönster med ljusgrå foder, väver vår senaste villaserie Svanö ihop klassisk tradition med nutid.


Utgå ifrån enplanshuset, 1,5-planshuset eller tvåplanshuset – och skapa ditt nya hem inspirerat av Höga Kustens tidlösa anda, med hjälp av våra husdesigners.

Exteriör och fasad

Här ser du hur huset ser ut från alla vinklar. Tycker du att fönsterna är för små eller vill du ha fler dörrar? Kom ihåg att du kan anpassa huset precis som du vill.

Skräddarsytt som standard

 

 

Hos oss på Skidstahus skräddarsyr vi alla våra hus efter våra kunders önskemål. Tillsammans med våra husdesigners utformar och designar du ditt hus

– precis så som du vill ha det.

 

Varmt välkommen att utforma din Villa Svanö med oss redan idag.

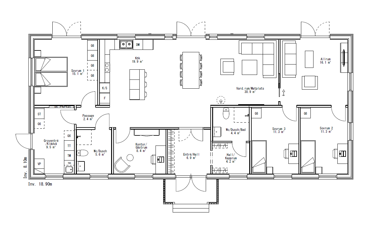
Interiör och planritning

Anpassa hus
Villa Svanö Enplan

Undre plan

Ett hus på många sätt

Inspireras av våra smarta planlösningar eller anpassa huset utifrån dina önskemål och behov. Har du en egen planritning? Skicka in den så får du en offert på husbygget.

Alla våra planritningar

Beställ våra huskataloger

Hus, fjällstuga eller fritidshus – hitta ditt nya hem i lugn och ro. Läs eller beställ hem våra kataloger.
Beställ här

De byggde drömhuset i skärgården

Inte långt från världsarvet Höga Kusten, längst ute på en liten udde, smälter Karin och Jan Näslunds nybyggda villa in fint i skärgårdsmiljön strax utanför Domsjö i Örnsköldsvik.
Läs mer om husprojektet