Villa Svanö Tvåplan

Ett ståtligt tvåplanshus med klassisk landskapsstil och gott om plats för familjeliv. Entréplanet bjuder på generösa sociala ytor med kök, matplats och vardagsrum i samspel, samt praktiska funktioner som groventré, kontor/gästrum och dubbla wc. På övervåningen finns fyra rymliga sovrum, ett allrum och ett stort badrum. Med sin välbalanserade planlösning och tidlösa karaktär erbjuder Villa Svanö ett hem där livet kan ta plats – på riktigt.

Boarea: 198.8

Antal plan: 2

Antal sovrum: 4

Antal badrum: 3

Svanö – en hyllning till det tidlösa landskapshuset

Tre hus. Tre livsstilar. Samma klassiska känsla.


Med sin röda träpanel, senapsgula dörrar och vita fönster med ljusgrå foder, väver vår senaste villaserie Svanö ihop klassisk tradition med nutid.


Välj att utgå ifrån enplanshuset, 1,5-planshuset eller tvåplanshuset – och skapa ditt nya hem inspirerat av Höga Kustens tidlösa anda, med hjälp av våra husdesigners.

Exteriör och fasad

Här ser du hur huset ser ut från alla vinklar. Tycker du att fönsterna är för små eller vill du ha fler dörrar? Kom ihåg att du kan anpassa huset precis som du vill.

Skräddarsytt som standard

 

 

Hos oss på Skidstahus skräddarsyr vi alla våra hus efter våra kunders önskemål. Tillsammans med våra husdesigners utformar och designar du ditt hus

– precis så som du vill ha det.

 

Varmt välkommen att utforma din Villa Svanö med oss redan idag.

Interiör och planritning

Anpassa hus
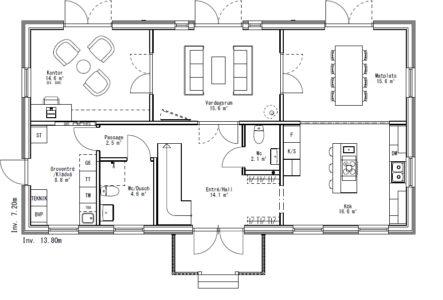
Villa Svanö Tvåplan

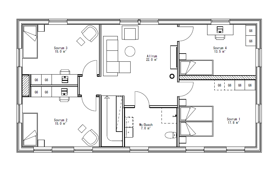
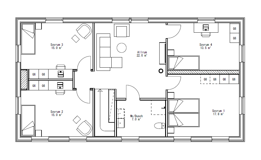
Undre plan

Villa Svanö Tvåplan

Övre plan

Ett hus på många sätt

Inspireras av våra smarta planlösningar eller anpassa huset utifrån dina önskemål och behov. Har du en egen planritning? Skicka in den så får du en offert på husbygget.

Alla våra planritningar

Beställ våra huskataloger

Hus, fjällstuga eller fritidshus – hitta ditt nya hem i lugn och ro. Läs eller beställ hem våra kataloger.
Beställ här

De byggde drömhuset i skärgården

Inte långt från världsarvet Höga Kusten, längst ute på en liten udde, smälter Karin och Jan Näslunds nybyggda villa in fint i skärgårdsmiljön strax utanför Domsjö i Örnsköldsvik.
Läs mer om husprojektet