Villa Utansjö

Vinkelhuset Villa Utansjö har en annorlunda och spännande konstruktion. Utbyggnaden rymmer vardagsrummet, som med sitt brutna tak och generösa ljusinsläpp från tre håll, gör ett storslaget intryck.

Boarea: 165

Antal plan: 1.5

Antal sovrum: 4

Antal badrum: 2

Exteriör och fasad

Här ser du hur huset ser ut från alla vinklar. Tycker du att fönsterna är för små eller vill du ha fler dörrar? Kom ihåg att du kan anpassa huset precis som du vill.

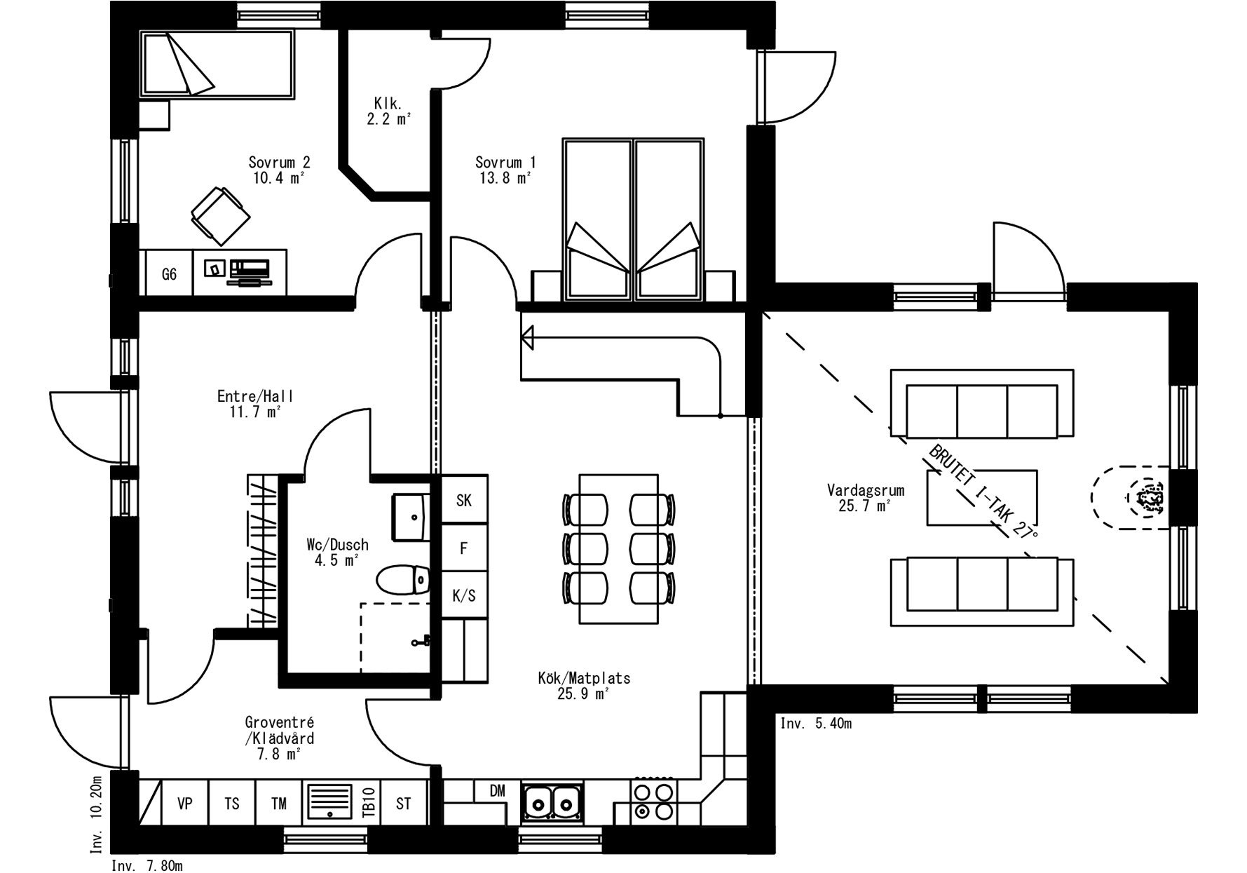
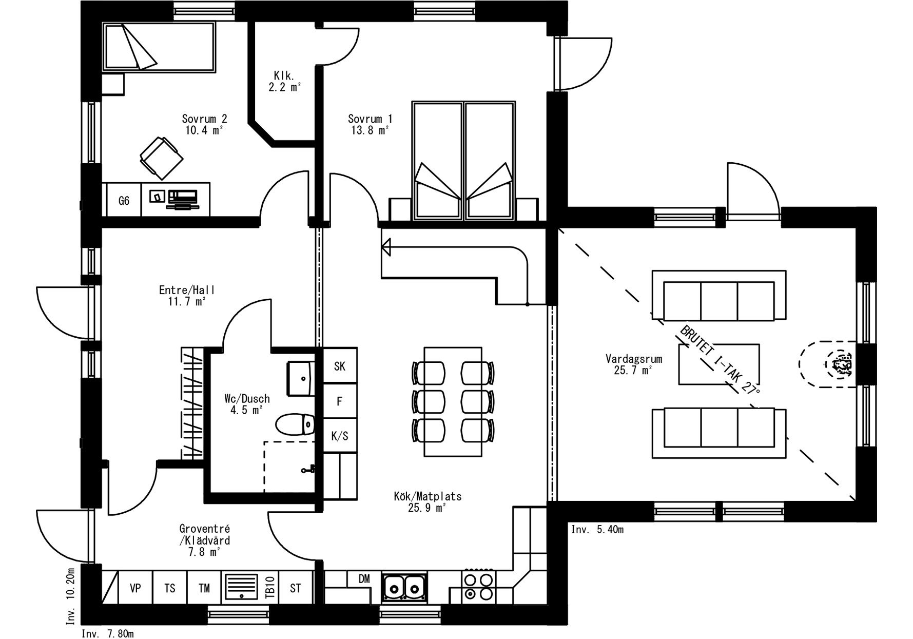
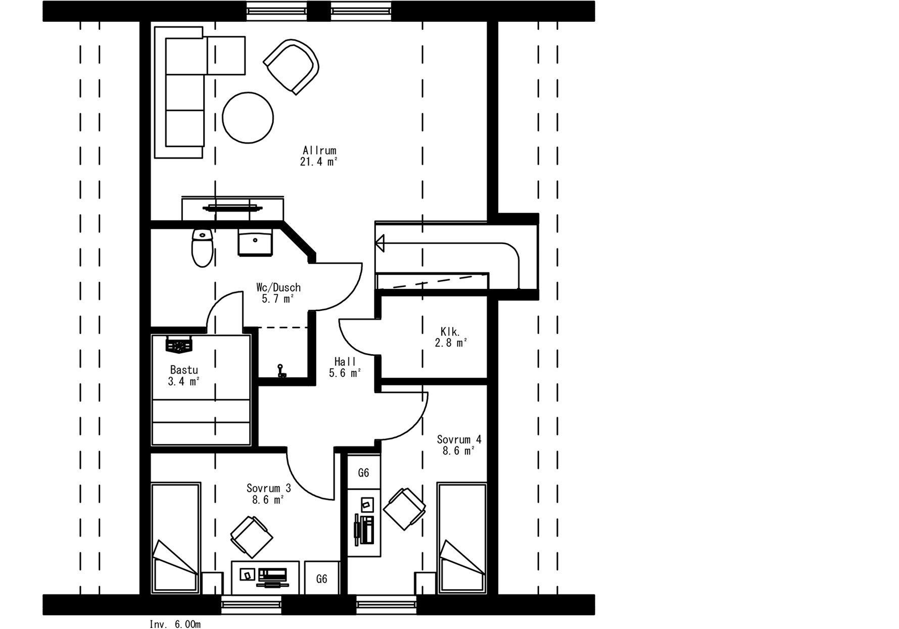
Interiör och planritning

Anpassa hus
Villa Utansjö

Undre plan

Villa Utansjö

Övre plan

Ett hus på många sätt

Inspireras av våra smarta planlösningar eller anpassa huset utifrån dina önskemål och behov. Har du en egen planritning? Skicka in den så får du en offert på husbygget.

Alla våra planritningar

Beställ våra huskataloger

Hus, fjällstuga eller fritidshus – hitta ditt nya hem i lugn och ro. Läs eller beställ hem våra kataloger.
Beställ här

De byggde drömhuset i skärgården

Inte långt från världsarvet Höga Kusten, längst ute på en liten udde, smälter Karin och Jan Näslunds nybyggda villa in fint i skärgårdsmiljön strax utanför Domsjö i Örnsköldsvik.
Läs mer om husprojektet