Villa Svedje

Villa Svedje är skapad för ett modernt vardagsliv där enkelhet, flexibilitet och trivsel står i centrum. Öppen planlösning med sociala ytor som kök och vardagsrum bildar hjärtat i huset och ger en naturlig samlingsplats  – både vardag som helg. Smart placerade sovrum skapar lugn och avskildhet, medan entré och förvaring är praktiskt lösta för en fungerande vardag.

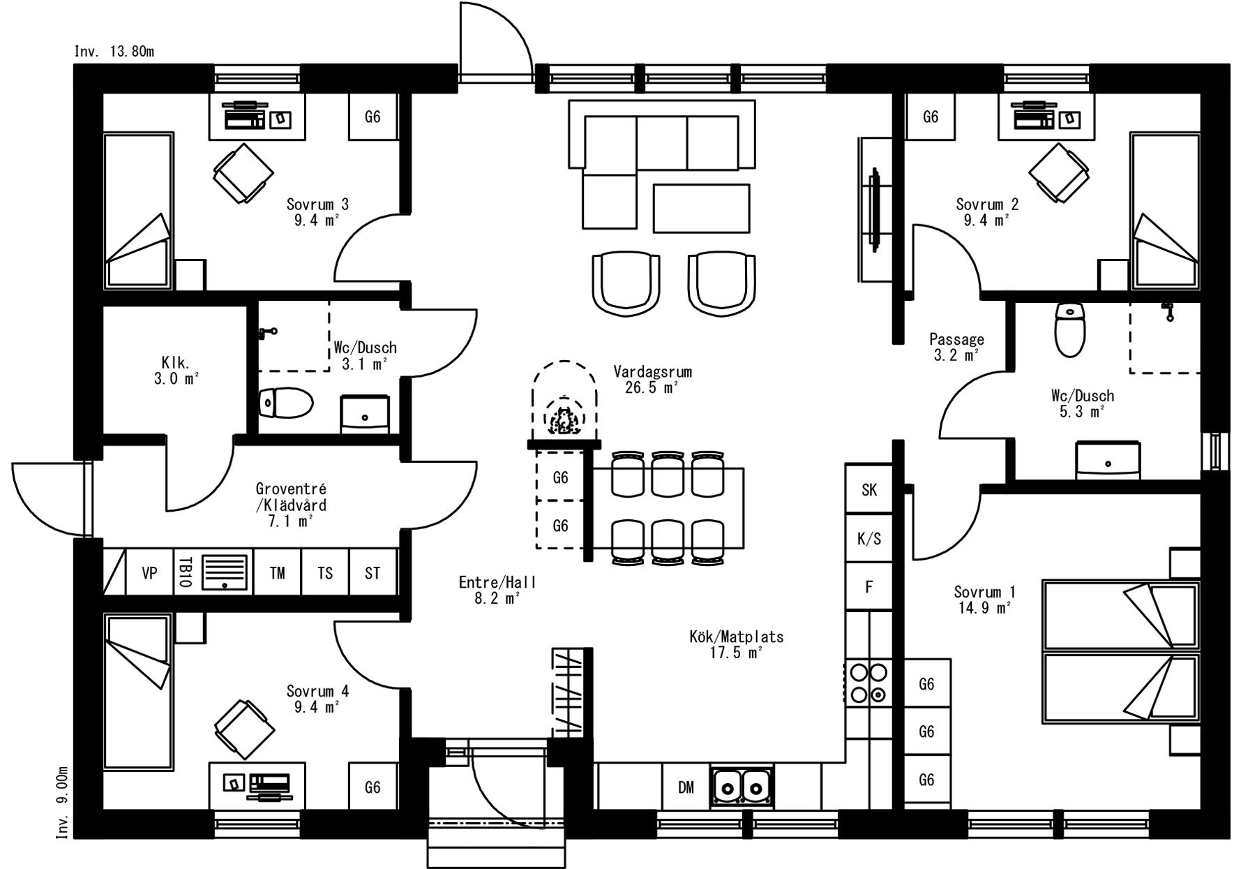
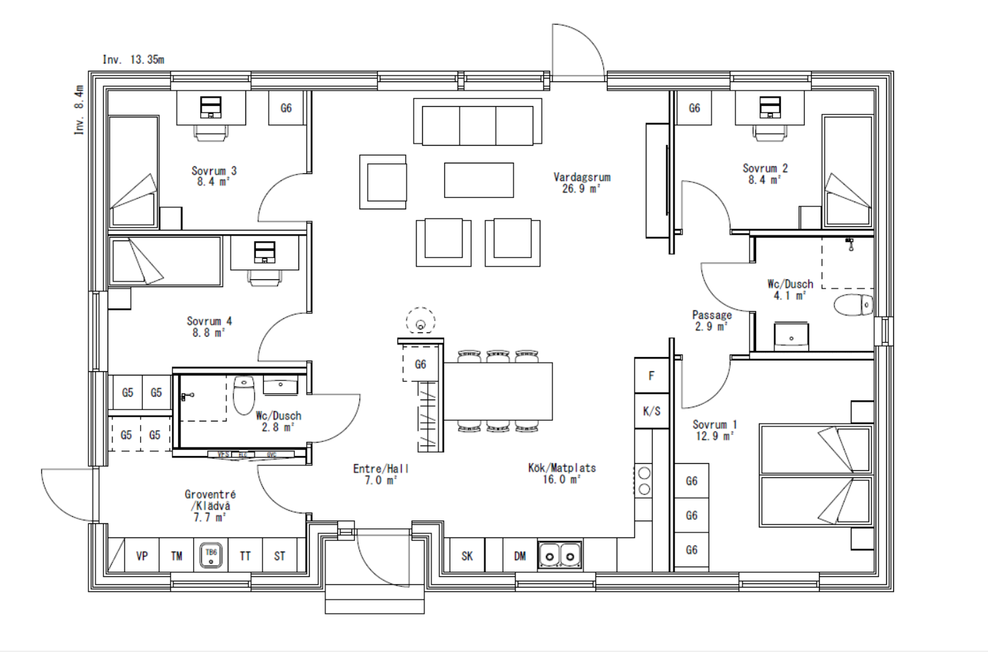
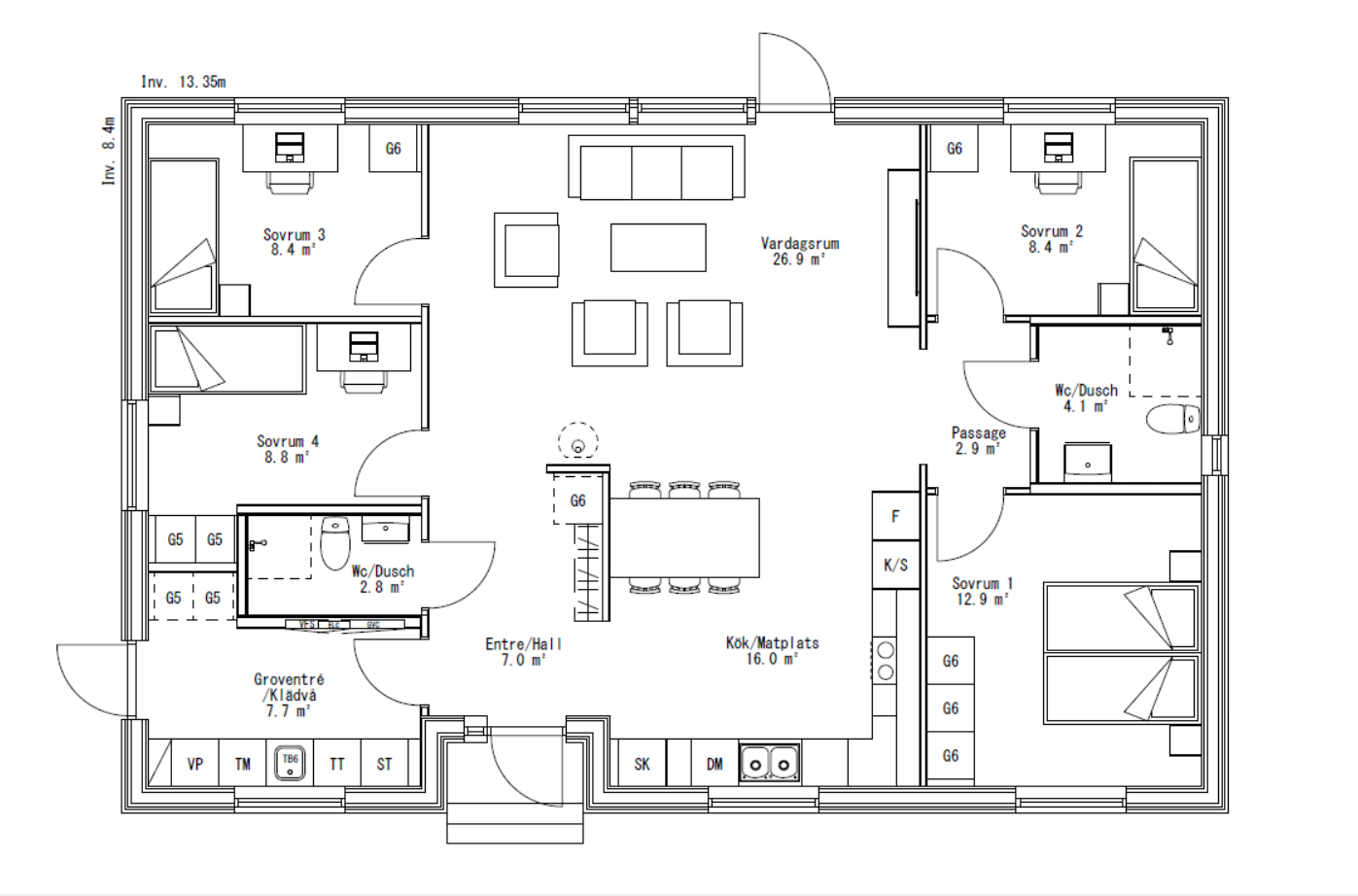
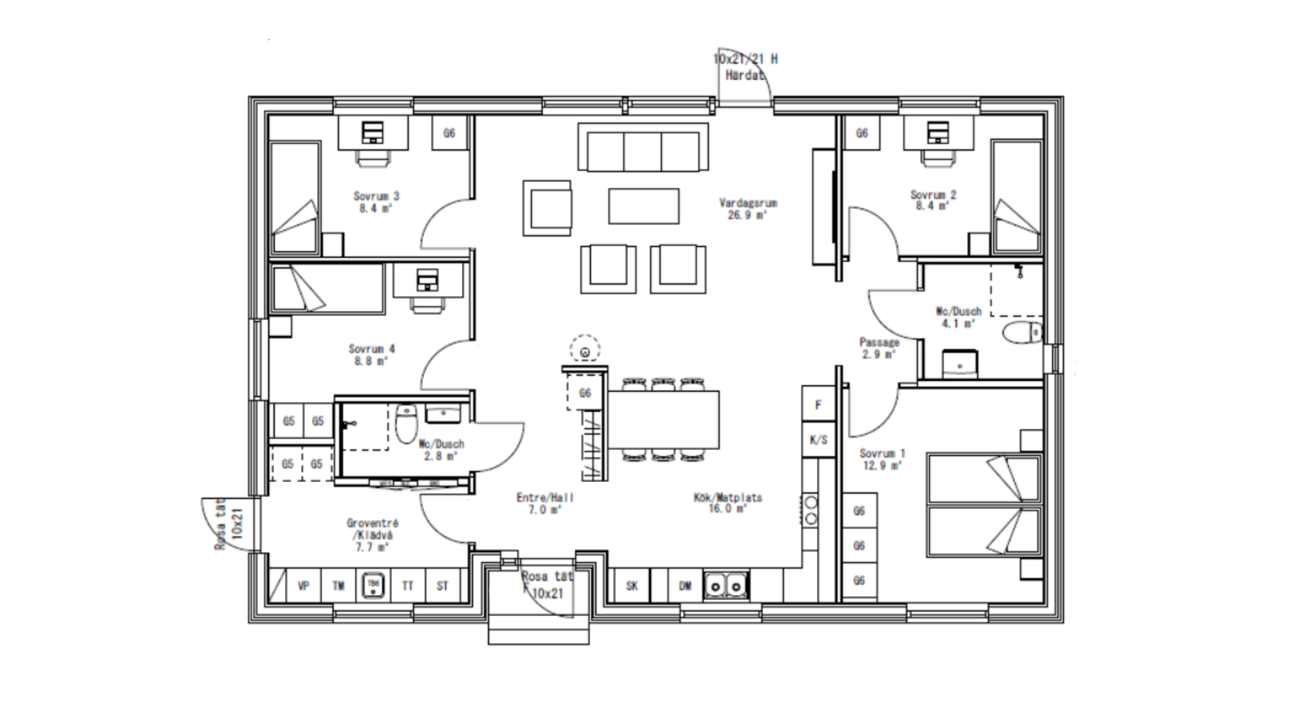
Boarea: 110

Antal plan: 1

Antal sovrum: 4

Antal badrum: 2

Exteriör och fasad

Här ser du hur huset ser ut från alla vinklar. Tycker du att fönsterna är för små eller vill du ha fler dörrar? Kom ihåg att du kan anpassa huset precis som du vill.

Skräddarsy Villa Svedje tillsammans med våra husdesigners

Villa Svedje finns även i färdigplanerade varianter om 90 och 130 kvm – samma arkitektoniska idé, samma själ, men i olika storlekar. Självklart kan du också skräddarsy Villa Svedje tillsammans med våra husdesigners, så att ditt hus blir precis så som du vill ha det.

Interiör och planritning

Anpassa hus
Villa Svedje

Undre plan

Ett hus på många sätt

Inspireras av våra smarta planlösningar eller anpassa huset utifrån dina önskemål och behov. Har du en egen planritning? Skicka in den så får du en offert på husbygget.

Alla våra planritningar

Beställ våra huskataloger

Hus, fjällstuga eller fritidshus – hitta ditt nya hem i lugn och ro. Läs eller beställ hem våra kataloger.
Beställ här

De byggde drömhuset i skärgården

Inte långt från världsarvet Höga Kusten, längst ute på en liten udde, smälter Karin och Jan Näslunds nybyggda villa in fint i skärgårdsmiljön strax utanför Domsjö i Örnsköldsvik.
Läs mer om husprojektet