Ramsta Fritidshus

Ett modernt fritidshus med öppna ytor och naturnära känsla. Det stora vardagsrummet med generös takhöjd och stora gavelfönster mot altanen suddar ut gränsen mellan ute och inne – perfekt för långa middagar och stilla sommarkvällar. Tre sovrum, bastu och groventré skapar en praktisk planlösning som passar lika bra för fritid som för året runt-boende.

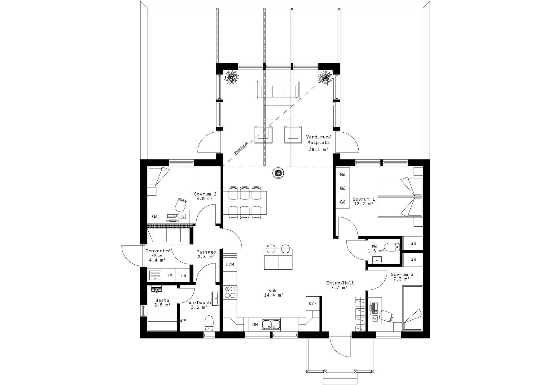
Boarea: 106.6

Antal plan: 1

Antal sovrum: 3

Antal badrum: 2

Ramsta Fritidshus
Ramsta Fritidshus
Ramsta Fritidshus

Exteriör och fasad

Här ser du hur huset ser ut från alla vinklar. Tycker du att fönsterna är för små eller vill du ha fler dörrar? Kom ihåg att du kan anpassa huset precis som du vill.

Interiör och planritning

Anpassa hus
Ramsta Fritidshus

Undre plan

Ett hus på många sätt

Inspireras av våra smarta planlösningar eller anpassa huset utifrån dina önskemål och behov. Har du en egen planritning? Skicka in den så får du en offert på husbygget.

Alla våra planritningar

Beställ våra huskataloger

Hus, fjällstuga eller fritidshus – hitta ditt nya hem i lugn och ro. Läs eller beställ hem våra kataloger.
Beställ här

De byggde drömhuset i skärgården

Inte långt från världsarvet Höga Kusten, längst ute på en liten udde, smälter Karin och Jan Näslunds nybyggda villa in fint i skärgårdsmiljön strax utanför Domsjö i Örnsköldsvik.
Läs mer om husprojektet