Lillsand 30 Fritidshus

Förvandla villatomten till ett eget litet paradis med Lillsand, vårt fritidshus på 30 kvm. En genomtänkt och yteffektiv lösning som ger plats för både fritid och vardag – oavsett om du längtar efter en gäststuga, en kreativ studio eller ett rofyllt hemmakontor nära huset.

Bilderna visar inspiration och möjligheter. Du väljer själv hur du vill skräddarsy ditt Lillsand – utformning, uttryck och detaljer anpassas efter din tomt, dina behov och din livsstil.
Ett litet hus, format helt efter dig.

Boarea: 22.7

Antal plan: 1

Antal sovrum: 1

Antal badrum: 1

Lillsand 30 Fritidshus
Lillsand 30 Fritidshus

Lillsand uppfyller nya attefallsreglerna

Lillsand ingår i vår serie mindre fritidshus som alla uppfyller de nya attefallsreglerna, vilket gör det enkelt att komplettera ditt befintliga boende med ett Lillsand på tomten. Husen byggs med samma omsorg, kvalitet och flexibilitet som vi lagt i våra större hem – handbyggda i vår egen husfabrik i Äskja, Ullånger.

Exteriör och fasad

Här ser du hur huset ser ut från alla vinklar. Tycker du att fönsterna är för små eller vill du ha fler dörrar? Kom ihåg att du kan anpassa huset precis som du vill.

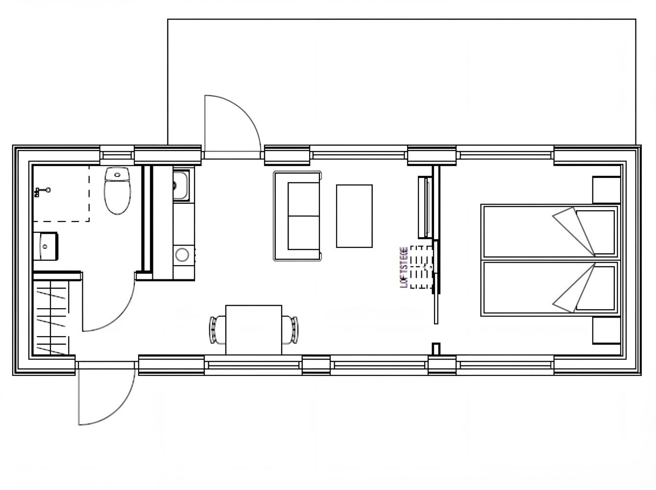
Interiör och planritning

Anpassa hus
Lillsand 30 Fritidshus

Undre plan

Ett hus på många sätt

Inspireras av våra smarta planlösningar eller anpassa huset utifrån dina önskemål och behov. Har du en egen planritning? Skicka in den så får du en offert på husbygget.

Alla våra planritningar

Beställ våra huskataloger

Hus, fjällstuga eller fritidshus – hitta ditt nya hem i lugn och ro. Läs eller beställ hem våra kataloger.
Beställ här

De byggde drömhuset i skärgården

Inte långt från världsarvet Höga Kusten, längst ute på en liten udde, smälter Karin och Jan Näslunds nybyggda villa in fint i skärgårdsmiljön strax utanför Domsjö i Örnsköldsvik.
Läs mer om husprojektet