Mäja 70 Fritidshus

Lagom stort, fullt av möjligheter. MÄJA 70 är fritidshuset för dig som vill ha gott om plats för familj och vänner – men i ett smidigare format. Med 70 välplanerade kvadratmeter, tre sovrum och en öppen sällskapsyta, finns plats att njuta av livet. En smart planlösning gör huset både funktionellt och mysigt. 

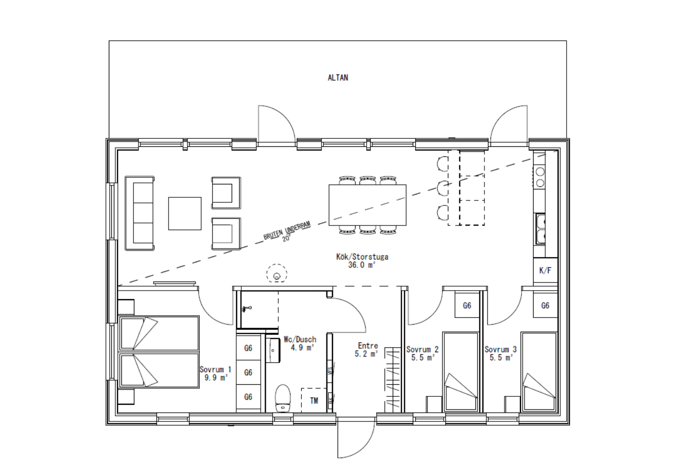
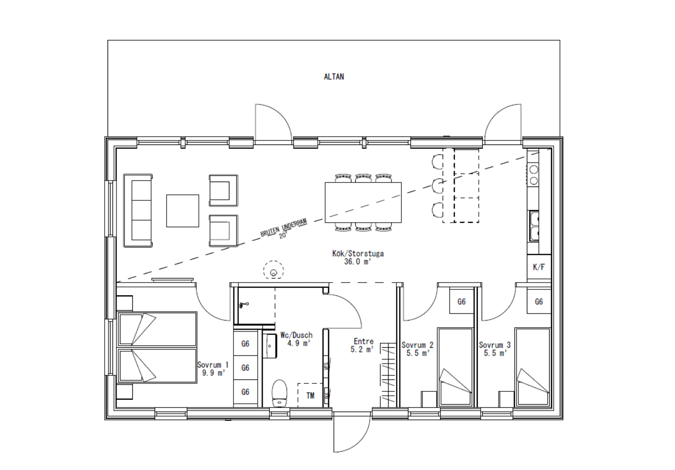
Boarea: 69.7

Antal plan: 1

Antal sovrum: 3

Antal badrum: 1

Mäja 70 – Välplanerat fritidshus för det enkla livet

Kompakt utan kompromisser

 

Med sina 70 smarta kvadratmeter erbjuder MÄJA 70 en perfekt balans mellan funktion och mysfaktor. Här finns tre sovrum, ett rymligt badrum och ett öppet kök/vardagsrum på 36 kvm, där umgänget står i centrum. De generösa fönstren med sina dörrpartier suddar ut gränsen mellan ute och inne och skapar en levande kontakt med naturen – oavsett årstid.

 

En planlösning som rymmer livet

 

MÄJA 70 är utformad för att kännas större än sina kvadratmeter. Sovrummen är placerade smart längs ena sidan, vilket ger lugn och ro, medan sociala ytor badar i ljus och öppnar upp mot altanen. Här finns också ett rejält badrum med tvättmaskin, praktisk entré med förvaring och ett kök med plats för både vardag och fest.

Exteriör och fasad

Här ser du hur huset ser ut från alla vinklar. Tycker du att fönsterna är för små eller vill du ha fler dörrar? Kom ihåg att du kan anpassa huset precis som du vill.

Skräddarsytt som standard

Hos oss på Skidstahus skräddarsyr vi alla våra hus efter våra kunders önskemål. Tillsammans med våra husdesigners utformar och designar du ditt hus

– precis så som du vill ha det.

 

Varmt välkommen att utforma ditt Mäja Fritidshus med oss redan idag!

Interiör och planritning

Anpassa hus
Mäja 70 Fritidshus

Undre plan

Ett hus på många sätt

Inspireras av våra smarta planlösningar eller anpassa huset utifrån dina önskemål och behov. Har du en egen planritning? Skicka in den så får du en offert på husbygget.

Alla våra planritningar

Beställ våra huskataloger

Hus, fjällstuga eller fritidshus – hitta ditt nya hem i lugn och ro. Läs eller beställ hem våra kataloger.
Beställ här

De byggde drömhuset i skärgården

Inte långt från världsarvet Höga Kusten, längst ute på en liten udde, smälter Karin och Jan Näslunds nybyggda villa in fint i skärgårdsmiljön strax utanför Domsjö i Örnsköldsvik.
Läs mer om husprojektet