Mäja 90 Fritidshus

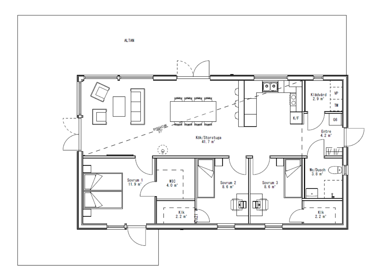
MÄJA 90 är seriens mest generösa modell – ett modernt fritidshus med öppen planlösning och hela 41 m² kök och vardagsrum i ett. De stora fönstren i nockhöjd släpper in ljuset året om och suddar ut gränsen mellan ute och inne. Med walk-in-closet, klädkammare och separat entré blir vardagen enkel och praktisk – oavsett säsong. Ett ljust och harmoniskt hus för dig som vill kombinera funktion, form och frihet.

Boarea: 94

Antal plan: 1

Antal sovrum: 3

Antal badrum: 1

Upptäck Fritidshuset MÄJA 90m²

Nittiofyra smarta kvadrat med norrländsk charm, tre sovrum och stort sällskapsrum med ljusinsläpp i toppklass. Ett hem att längta till, året om.

 

MÄJA 90 är vår mest generösa modell med öppen planlösning mellan kök och vardagsrum på hela 41 kvm. Med walk-in-closet, klädkammare och separat entré med klädvård blir vardagen enkel och praktisk – även i fritidshuset.

 

Och de stora fönstren i nockhöjd? De bjuder på magiska vyer och känslan av att verkligen vara där du trivs som allra bäst.

Exteriör och fasad

Här ser du hur huset ser ut från alla vinklar. Tycker du att fönsterna är för små eller vill du ha fler dörrar? Kom ihåg att du kan anpassa huset precis som du vill.

Skräddarsytt som standard

Hos oss på Skidstahus skräddarsyr vi alla våra hus efter våra kunders önskemål. Tillsammans med våra husdesigners utformar och designar du ditt hus

– precis så som du vill ha det.

 

Varmt välkommen att utforma ditt Mäja Fritidshus med oss redan idag!

Interiör och planritning

Anpassa hus
Mäja 90 Fritidshus

Undre plan

Ett hus på många sätt

Inspireras av våra smarta planlösningar eller anpassa huset utifrån dina önskemål och behov. Har du en egen planritning? Skicka in den så får du en offert på husbygget.

Alla våra planritningar