Almsjönäs Fritidshus

Almsjönäs är ett av våra mest klassiska fritidshus – med sin symmetriska form, ljusa träfasad och generösa loft. Här möts tradition och funktion på 1,5-plan i en planlösning som bjuder in till både gemenskap och lugn. På entréplan finns tre sovrum och vardagsrum med ljusinsläpp från flera håll, medan loftet rymmer ytterligare sovrum och ett mysigt allrum för barn eller gäster. Almsjönäs bjuder på generös takhöjd, förhöjt väggliv, extra rymd och genomtänkt planlösning som fungerar lika bra för familjeliv som för umgänge.

Boarea: 79.8

Antal plan: 1.5

Antal sovrum: 5

Antal badrum: 1

Exteriör och fasad

Här ser du hur huset ser ut från alla vinklar. Tycker du att fönsterna är för små eller vill du ha fler dörrar? Kom ihåg att du kan anpassa huset precis som du vill.

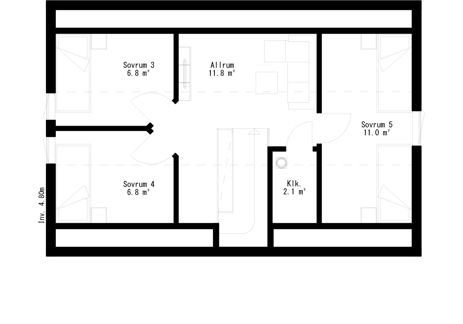
Interiör och planritning

Anpassa hus
Almsjönäs Fritidshus

Undre plan

Almsjönäs Fritidshus

Övre plan

Ett hus på många sätt

Inspireras av våra smarta planlösningar eller anpassa huset utifrån dina önskemål och behov. Har du en egen planritning? Skicka in den så får du en offert på husbygget.

Alla våra planritningar

Beställ våra huskataloger

Hus, fjällstuga eller fritidshus – hitta ditt nya hem i lugn och ro. Läs eller beställ hem våra kataloger.
Beställ här

De byggde drömhuset i skärgården

Inte långt från världsarvet Höga Kusten, längst ute på en liten udde, smälter Karin och Jan Näslunds nybyggda villa in fint i skärgårdsmiljön strax utanför Domsjö i Örnsköldsvik.
Läs mer om husprojektet