Ulvön Fritidshus

Ett tidlöst fritidshus som andas klassisk norrländsk sommaridyll med sin röda panel, vita knutar och generösa veranda som bjuder in till både kaffestunder och kvällssol. Planlösningen är smart med tydlig zonindelning, och loftet ger gott om extra utrymme – perfekt för dig som vill ha både charm och funktion för familj och gäster. Ulvön förenar naturligt modern komfort med tradition – resultatet: ett stilfullt och harmoniskt fritidshus.

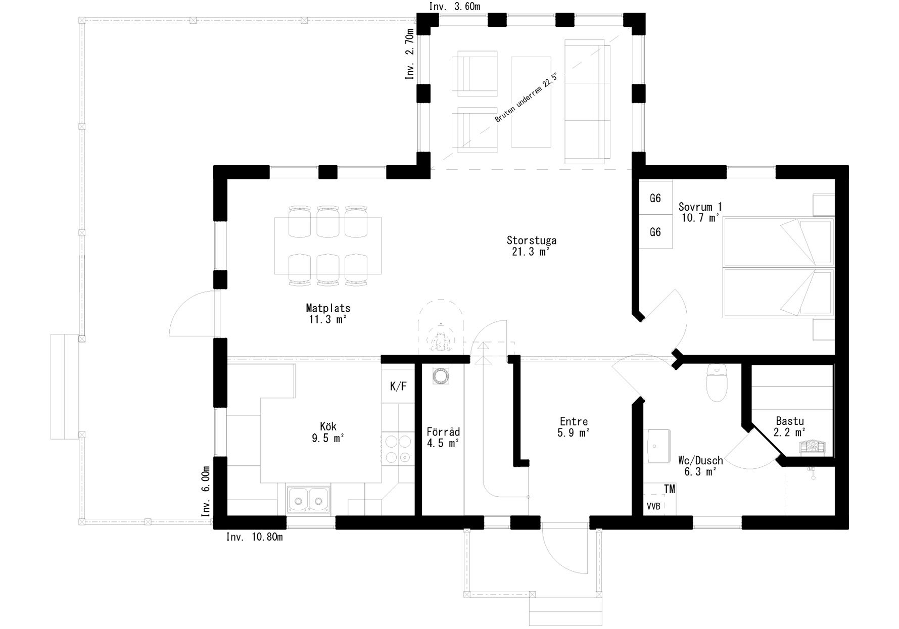
Boarea: 107.6

Antal plan: 1.5

Antal sovrum: 3

Antal badrum: 2

Exteriör och fasad

Här ser du hur huset ser ut från alla vinklar. Tycker du att fönsterna är för små eller vill du ha fler dörrar? Kom ihåg att du kan anpassa huset precis som du vill.

Interiör och planritning

Anpassa hus
Ulvön Fritidshus

Undre plan

Ulvön Fritidshus

Övre plan

Ett hus på många sätt

Inspireras av våra smarta planlösningar eller anpassa huset utifrån dina önskemål och behov. Har du en egen planritning? Skicka in den så får du en offert på husbygget.

Alla våra planritningar

Beställ våra huskataloger

Hus, fjällstuga eller fritidshus – hitta ditt nya hem i lugn och ro. Läs eller beställ hem våra kataloger.
Beställ här

De byggde drömhuset i skärgården

Inte långt från världsarvet Höga Kusten, längst ute på en liten udde, smälter Karin och Jan Näslunds nybyggda villa in fint i skärgårdsmiljön strax utanför Domsjö i Örnsköldsvik.
Läs mer om husprojektet